Services proposées :
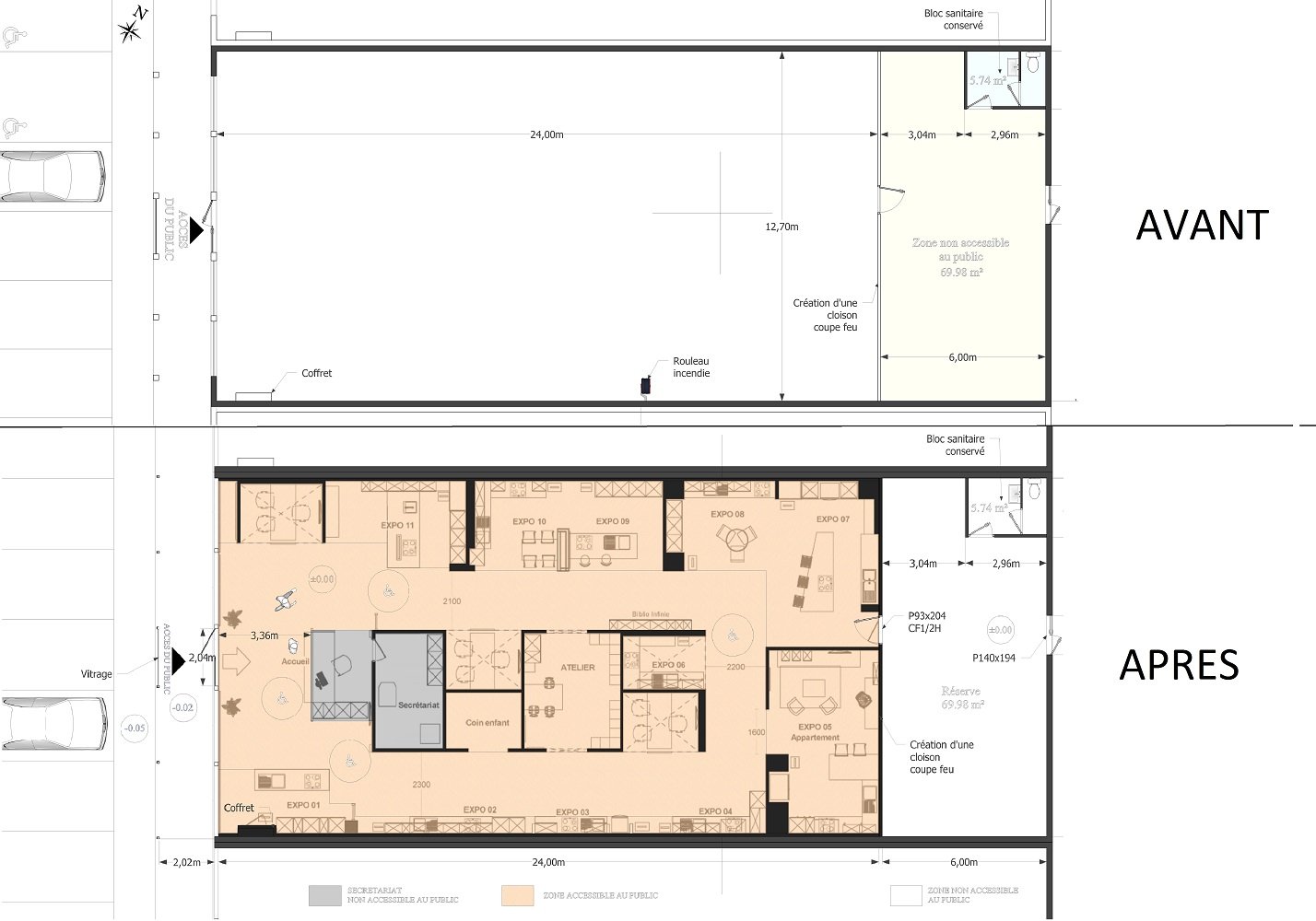
Aménagement d'un local : la-bootique.com
Vente et réparation de téléphone portable et d’ordinateur à Poitiers au 13 Rue Léopold Sédar Senghor.
Rénovation des bureaux et création du studio photo
Grenouilles Productions | Poitiers
Aménagement du local pour Cuisines Aviva | Migné-auxances 86
Étude d'aménagement d'un salon de coiffure
Étude d'aménagement d'un cabinet médical
