Modèle Rivedoux

Maison contemporaine de 96 m²

Maison compacte s'intégrant dans la pente du terrain.


Hervé Brémaud - Maître d'oeuvre bâtiment à Poitiers, conception et construction de maisons à ossatures bois et contemporaines
Perspective avant

Hervé Brémaud - Maître d'oeuvre bâtiment à Poitiers, conception et construction de maisons à ossatures bois et contemporaines
Vue de la terrasse

Hervé Brémaud - Maître d'oeuvre bâtiment à Poitiers, conception et construction de maisons à ossatures bois et contemporaines
Coupe

Hervé Brémaud - Maître d'oeuvre bâtiment à Poitiers, conception et construction de maisons à ossatures bois et contemporaines
Coupe de nuit

Hervé Brémaud - Maître d'oeuvre bâtiment à Poitiers, conception et construction de maisons à ossatures bois et contemporaines
Vue de la terrasse de nuit

Hervé Brémaud - Maître d'oeuvre bâtiment à Poitiers, conception et construction de maisons à ossatures bois et contemporaines
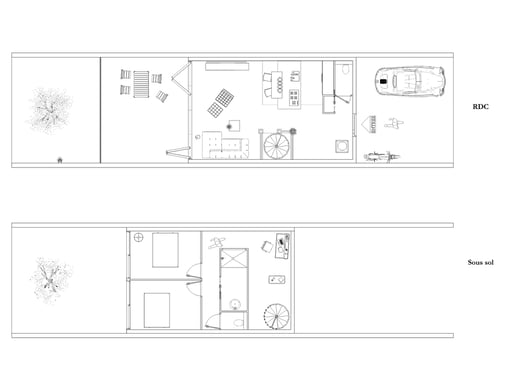
Plans

La reproduction partielle ou intégrale des plans, sans l'accord préalable et écrit de l’auteur, est strictement interdite.