Modèle Immo

Maison contemporaine 71 à 85 m²

Maison groupée


Hervé Brémaud - Maître d'oeuvre bâtiment à Poitiers, conception et construction de maisons à ossatures bois et contemporaines
Perspective

Hervé Brémaud - Maître d'oeuvre bâtiment à Poitiers, conception et construction de maisons à ossatures bois et contemporaines
Perpective

Hervé Brémaud - Maître d'oeuvre bâtiment à Poitiers, conception et construction de maisons à ossatures bois et contemporaines
Intérieur

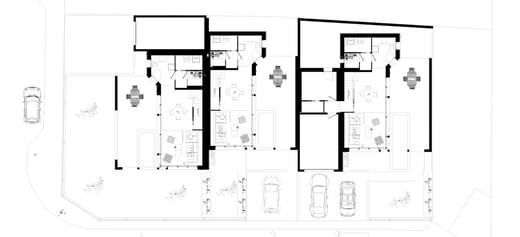
Hervé Brémaud - Maître d'oeuvre bâtiment à Poitiers, conception et construction de maisons à ossatures bois et contemporaines
Plan

La reproduction partielle ou intégrale des plans, sans l'accord préalable et écrit de l’auteur, est strictement interdite.